Produk
HOME > Produk
12kV RM6 SF6 Gas Insulated Switchgear
  • 12kV RM6 SF6 Gas Insulated Switchgear12kV RM6 SF6 Gas Insulated Switchgear
  • 12kV RM6 SF6 Gas Insulated Switchgear12kV RM6 SF6 Gas Insulated Switchgear
  • 12kV RM6 SF6 Gas Insulated Switchgear12kV RM6 SF6 Gas Insulated Switchgear

12kV RM6 SF6 Gas Insulated Switchgear

Kanthi pengalaman pirang-pirang taun ing produksi Switchgear Terisolasi Gas 12kV RM6 SF6, Comewill bisa nyedhiyakake macem-macem Switchgear Tegangan Tinggi lan Tegangan Sedheng. Nggunakake insulasi SF6 lan teknologi arc-quenching, njamin pasokan listrik tanpa gangguan, nyuda downtime, lan nglindhungi peralatan saka kesalahan.

Nganyarke distribusi voltase medium kanthi Switchgear Insulated Gas 12kV RM6 SF6 Comewill digawe ing China. Desain modular, operasi sisih ngarep, lan proteksi kabeh-mubeng ngidini sampeyan ngatur pemutus sirkuit, ngalih beban, lan piranti grounding persis kaya sing dibutuhake. Dibangun kanggo daya tahan, gampang pangopènan, lan operasi sing ramah lingkungan, unit iki cocog karo standar listrik modern nalika ngirit papan lan nyuda risiko operasional.

Kondisi Lingkungan

Ayo dadi prasaja - iki apa sing bisa ditindakake piranti kita, ora ana jargon sing rumit:

Altitude: Max 2000 meter (luwih dhuwur, tekan kita munggah).
Suhu: Bisa ing -40 ℃ nganti + 40 ℃, lan suhu rata-rata sajrone 24 jam ora bisa ngluwihi 35 ℃.
Kelembapan: Rata-rata saben dina ing sangisore 95%, rata-rata saben wulan ing sangisore 90% - unit kita tetep ana sanajan ing wilayah sing lembab.
Spasi instalasi: Kudu bebas saka goyang abot, guncang, risiko geni, utawa apa wae sing bisa njeblug.
Resistance lindhu: Njupuk nganti 8 derajat lindhu, karo lemah sisih-kanggo-sisih goyang ing ngisor 0,4g lan munggah-mudhun goyang ing 0,2g.

Yen kahanan situs sampeyan ngluwihi iki (kayata papan sing dhuwur banget, panas / kadhemen sing ekstrem, utawa risiko seismik ekstra), hubungi Welcome (Wenzhou) Electric Co., Ltd.

Fitur produk

Isolasi Unggul & Arc-Quenching
Kita ngandelake insulasi gas SF6 sing ora bisa dikalahake lan sipat snuffing busur ing kene-ora ana sudhut nglereni. Iki nyegah kesalahan listrik, supaya sistem tenaga sampeyan tetep stabil, ora ana kejatuhan utawa karusakan sing ora dikarepake.

Desain Modular Fleksibel
Modularitas dipanggang langsung menyang unit iki. Sampeyan bisa nyampur lan cocog komponen: pemutus sirkuit, ngalih beban, ngalih bumi-apa wae sing dibutuhake proyek sampeyan. Kita bakal nyetel kanggo spek sampeyan, supaya sampeyan entuk solusi distribusi sing persis apa sing dikarepake, dudu kothak siji-ukuran-cocok-kabeh.

Kompak, Ngirit Ruang
Switchgear Insulated Gas 12kV RM6 SF6 iki dirancang kanggo pas karo panggonan sing nyenyet. Ora ana pigura gedhe, ora ana papan sing boros - cocog kanggo situs sing winates ruangan. Instalasi gampang banget, lan ngoptimalake saben inch persiyapan sampeyan, apa iku gardu kutha utawa lemari pabrik.

Gampang kanggo Operate & Maintain
Kabeh wis dibangun kanggo panggunaan sisih ngarep-ora perlu mbukak unit kanggo nyetel setelan. Sing luwih aman kanggo tim sampeyan lan luwih trep. Pangopènan uga dilucuti: luwih sithik bagian sing kudu diganggu, kurang downtime, lan biaya perawatan luwih murah.

Desain Ramah Lingkungan
We njupuk care karo SF6 gas-sistem loop tertutup tegese ora bocor, lan kabeh unit dibangun kanggo daur ulang utawa dibuwang saka tanggung jawab. Iki mriksa kabeh kothak lingkungan, supaya sampeyan ora mung entuk peralatan sing dipercaya, sampeyan uga entuk peralatan sing gampang ing planet iki.

Kabeh-Round Protection
Unit iki nglawan kakehan, sirkuit cendhak-apa wae sing dibuwang ing kothak kasebut. Iku tetep sistem lan kabeh peralatan kecanthol nganti aman, ora ketompo skenario. Kekuwatan sing mantep, resiko minimal - iku kabeh babagan.

Ing Welcome (Wenzhou) Electric Co., Ltd, fitur-fitur kasebut ora mung titik peluru-padha dibangun ing saben unit RM6 sing dikirim, apa sampeyan tuku akeh kanggo proyek gedhe utawa butuh persiyapan khusus kanggo papan sing sithik.

Data Teknis

Modul C Modul F Modul V Modul CB Kab

Ngalih beban Perkakas listrik gabungan ngalih vakum Isolasi / grounding switch Pemutus sirkuit udara langsung Isolasi / grounding switch

Tegangan Rated KV 12 12 12 12 12 12
Frekuensi Rated HZ 50 50 50 50 50 50
Frekuensi Daya Tahan Tegangan (fase/fraktur) KV 42/48 42/48 42/48 42/48 42/48 42/48
Kejut kilat tahan voltase KV 75/85 75/85 75/85 75/85 75/85 75/85
Rated saiki A 630 Cathetan 1 630
1250/630
Kemampuan ngrusak






Rated loop tertutup saiki breaking A 630




Rated kabel pangisi daya break saiki A 10




Rated short circuit nutup arus (puncak) A 50 80



Rated peak tolerable saiki kA 50




Dirating short-time tolerable saiki kA/3s 20




Rated short circuit breaking saiki kA
31.5 20
25
Rated transfer saiki A
1700



Gunakake saiki maksimum sekring A
125



Loop resistance -n ≤300 ≤600



urip mekanik kaping 5000 3000 5000 2000 5000 2000
Cathetan 1: Gumantung ing rating saiki sekring.

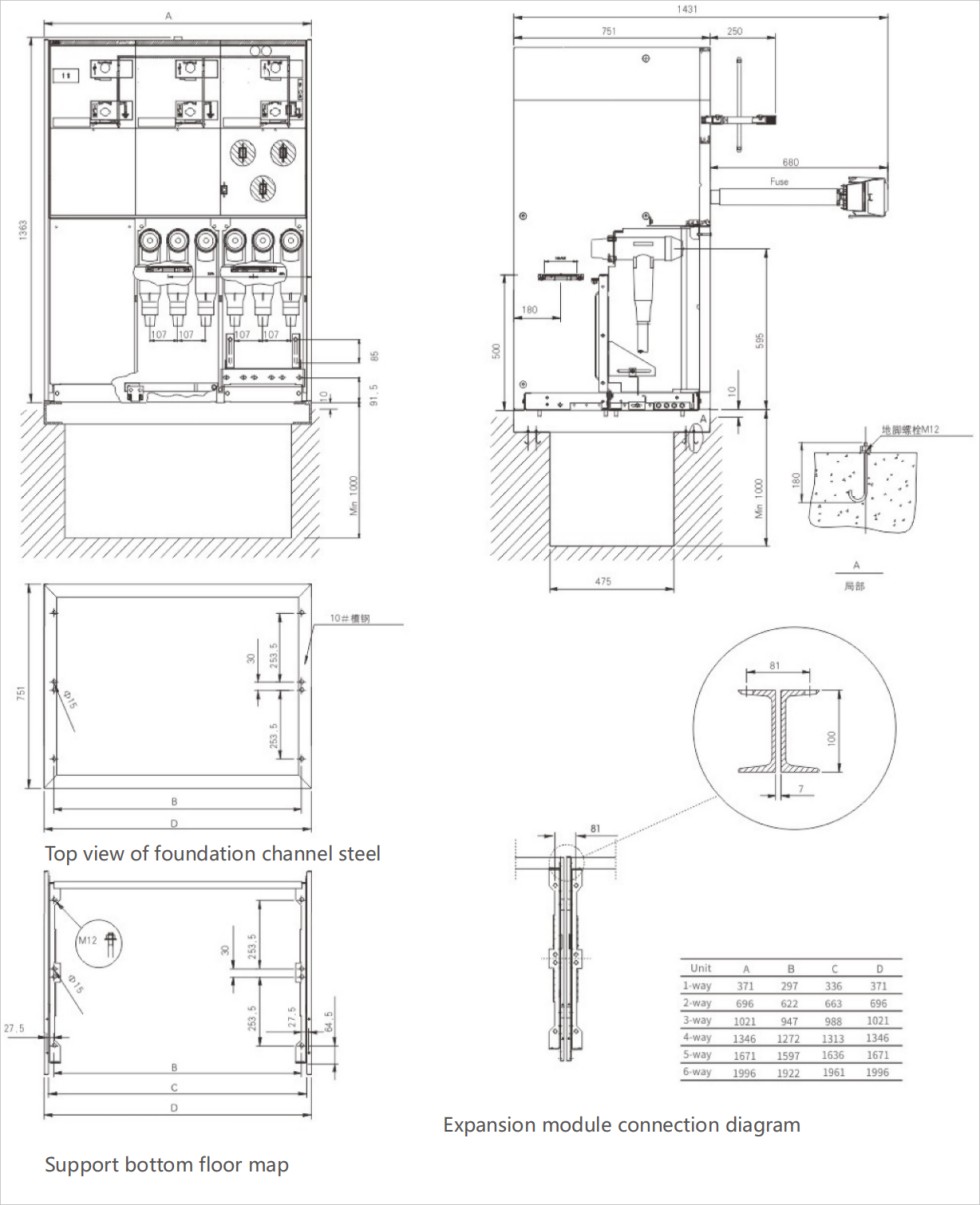
Diagram skema sirkuit utama




FAQ

Q1: Apa keuntungan utama RM6 tinimbang switchgear terisolasi udara konvensional? 

A: RM6 nggunakake insulasi SF6 lan gas-arc quenching, dadi luwih kompak, luwih aman, lan ramah-pangopènan dibandhingake karo unit terisolasi udara gedhe banget. 

Q2: Apa RM6 bisa digunakake ing aplikasi kothak pinter? 

A: Nggih. Desain modular ngidini integrasi karo relay digital, SCADA, lan sistem pemantauan jarak jauh, sing cocog kanggo persiyapan gardu induk sing cerdas. 

Q3: Lingkungan instalasi apa sing cocog? 

A: Panggunaan njero ruangan kanggo gardu kutha, pabrik industri, kompleks komersial, utawa aplikasi voltase medium sing mbutuhake peralatan distribusi sing kompak lan dipercaya.

Hot Tags: 12kV RM6 SF6 Gas Insulated Switchgear, China, Produsen, Supplier, Pabrik, Grosir, Customized, ing Simpenan, Made in China, Low Price, Quality
Kirim Pitakonan
Info kontak
Kirimi pitakon menyang Comewill kanggo switchgear, pemutus sirkuit vakum, trafo saiki. Entuk kuotasi khusus, rega murah utawa dhukungan ahli saka tim pabrik China.
X
Kita nggunakake cookie kanggo menehi pengalaman browsing sing luwih apik, nganalisa lalu lintas situs lan nggawe konten pribadi. Kanthi nggunakake situs iki, sampeyan setuju kanggo nggunakake cookie. Kebijakan Privasi
nolak Nampa